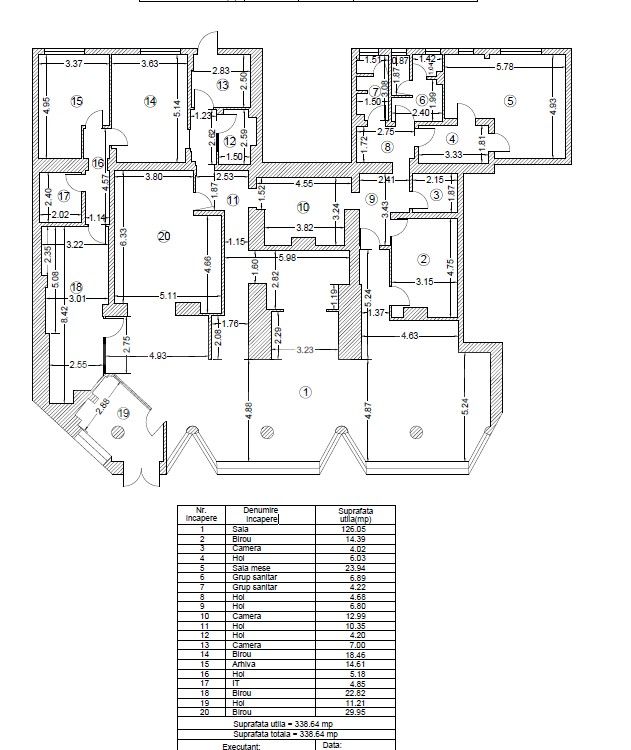
338mp spatiu comercial/birouri | locatie exclusivista


  • 11 camere
  • 2 Bai
  • 338 mp construiti
Descriere

Amplasat in zona Dorobanti, acest spatiu comercial in suprafata de 338mp se afla la parterul unui imobil D+P+10.
Este compus din open-space de 126mp, 2 grupuri sanitar, 8 camere/birouri si spatii de depozitare.
Avand in vedere zona cu trafic pietonal intens, banci, Mega Image, farmacii, restaurante si cafenele, este pretabil pentru orice fel de activitate.

Floor Plans
€ 10.500+TVA/luna
  • 2548792, Dorobanti

    338mp spatiu comercial/birouri | locatie exclusivista

Similar Properties


€ 1900/luna+TVA
  • 3 Camere
  • 2 Bai
  • 0 mp

Amplasat in zona Polona, la doar cateva minute de Piata Romana, acest apartament cu 3 camere se afla la parterul unui imobil S+P+3. Are o suprafata construita de 155mp dintre care 90mp utili si 65mp... Citeste mai mult

€ 850.000
  • 4 Camere
  • 4 Bai
  • 190 mp

Situata pe o strada linistita, foarte aproape de Calea Dorobantilor, aceasta vila cu 4 camere este dispusa S+P+1+M si a fost recent renovata. Vila are o suprafata construita de 190mp dintre care... Citeste mai mult

€ 165.000
  • 2 Camere
  • 2 Bai
  • 70 mp

Situat in zona Dorobanti, acest apartament cu 2 camere se afla la etajul 1 al unei vile P+2. Are o suprafata totala de 70mp si 55mp utili. Este compus din living cu iesire pe balcon, chicineta,... Citeste mai mult